Espace propriétaire
fr

Votre recherche

Nouveauté

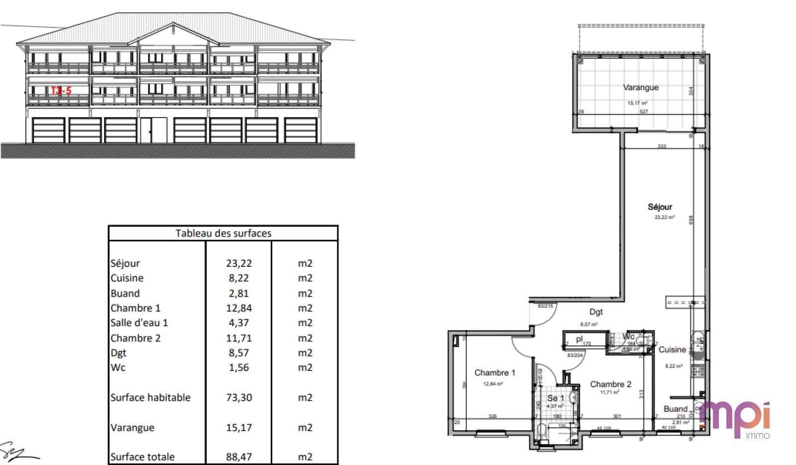
3 pièces - 88 m²

Programme NEUF VUE MER

378 000 €
Ref : T306SG
Découvrir le bien

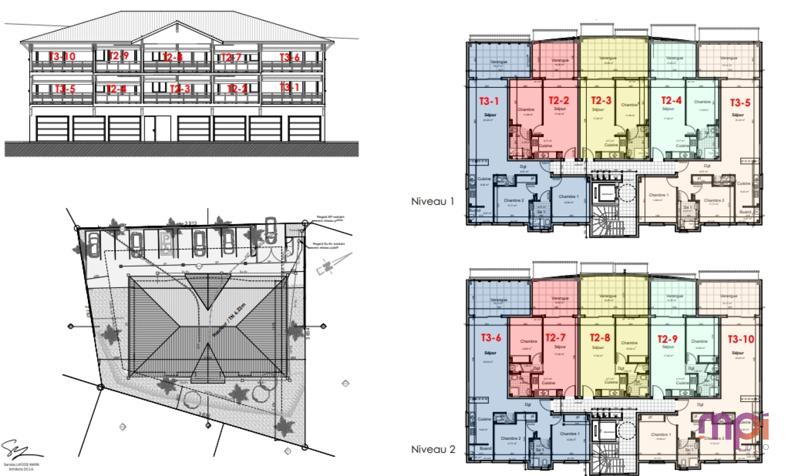
Contactez vite SYLVAIN GARDIN au 06.96.07.36.48. Nombre de lots limités pour cette belle résidence de standing de 10 appartements avec vue mer sur la baie de FDF située à L'Anse à L'Ane, à moins de 500 mètres de la plage, des commerces et des navettes maritimes, un T3 situé au 2 ème et dernier étage avec ascenceur: un séjour avec cuisine américaine aménagée et semi-équipée, une terrasse couverte, deux chambres climatisées, une salle d'eau, WC séparé, degagement, pour une surface totale de 88.47m2 (73.30m2 carrez). 2 Places de stationnement couvertes.

https://wetransfer.com/downloads/d86168a8235c1be325fe8d438f31cbe020240615001809/2a347ee0e8d3f2eb541cbe1a9512500a20240615001830/43f322?trk=TRN_TDL_01&utm_campaign=TRN_TDL_01&utm_medium=email&utm_source=sendgrid

Début des travaux juillet 2024, livraison fin 2025. Eligible au crédit d'impôt. Belle prestation dans une résidence de standing sur deux étages. Prix Honoraires d'agence inclus à la charge du vendeur: 378 000€ Vidéo du site sur demande: sylvain.gardin@mpi-immobilier.com - Les informations sur les risques auxquels ce bien est exposé sont disponibles sur site: georisques.gouv.fr

TRAD_ZEPHYR_Caracteristique TRAD_ZEPHYR_Valeurs
Surface habitable (m²) 88 m²
Nombre de chambre(s) 2
Nombre de pièces 3
Nombre de niveaux 1
Vue mer
TRAD_ZEPHYR_Caracteristique TRAD_ZEPHYR_Valeurs
Exposition Ouest
TRAD_ZEPHYR_Caracteristique TRAD_ZEPHYR_Valeurs
Prix de vente honoraires TTC inclus 378 000 €
DPE GES
  • Commerces et santé
  • Loisirs
  • Ecoles
  • Transports
  • Pratique
Contacter pour ce bien
L'agence
Téléphone 06 96 90 09 39
Adresse
ZA Taupinière 97223 Le Diamant

* Champ obligatoire

Les informations recueillies sur ce formulaire sont enregistrées dans un fichier informatisé par La Boite Immo agissant comme Sous-traitant du traitement pour la gestion de la clientèle/prospects de l'Agence / du Réseau qui reste Responsable du Traitement de vos Données personnelles.
La base légale du traitement repose sur l’intérêt légitime de l'Agence / du Réseau.
Elles sont conservées jusqu'à demande de suppression et sont destinées à l'Agence / au Réseau.
Conformément à la loi « informatique et libertés », vous pouvez exercer votre droit d'accès aux données vous concernant et les faire rectifier en contactant l'Agence / le Réseau.
Si vous estimez, après avoir contacté l'Agence / le Réseau, que vos droits « Informatique et Libertés » ne sont pas respectés, vous pouvez adresser une réclamation à la CNIL.
Nous vous informons de l’existence de la liste d'opposition au démarchage téléphonique « Bloctel », sur laquelle vous pouvez vous inscrire ici : https://www.bloctel.gouv.fr 
Dans le cadre de la protection des Données personnelles, nous vous invitons à ne pas inscrire de Données sensibles dans le champ de saisie libre
Ce site est protégé par reCAPTCHA, les Politiques de Confidentialité et les Conditions d'Utilisation de Google s'appliquent.

Découvrir nos outils